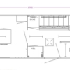
Beskrivelse
- Mål: H 295, B. 230, L. 570 cm.
- Elektrisk tilkobling: 400V 16Amp CEE plugg
- Maks. strømforbruk: 7770W
- Vanntilkobling: 3/4″ Nito kobling
- Avløp: 1” Nito kobling
- Usynlig kobling: 1.500 kg.
Inventar:
klesstativ, speil, oppslagstavle, bord og 6 stoler, kaffemaskin, kjøleskap, dusj, vask, toalett m/kvern, vaskerom, tørkeskap og 6 stk stålskap.
Inkl. 25 m slangesett
Utsalgspris: 95.000 kroner











