Beskrivelse
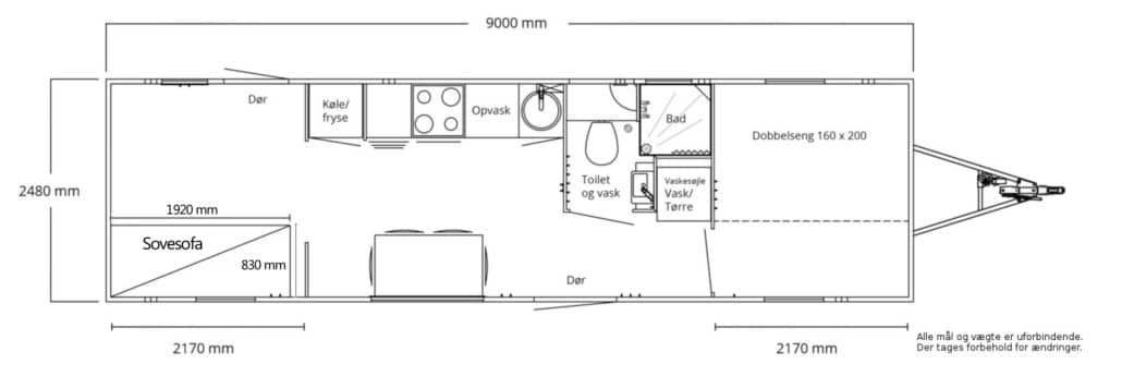
- Utvendig mål: H. 302 B. 250 L. 900 cm.
- Elektrisk tilkobling: 400V 16A CEE plugg
- Maks. strømforbruk: 17582W
- Vanntilkobling: 3/4” Nito kobling
- Avløp: 1” Nito kobling
- Avløpskvern: pumpelengde 50 m.
- Usynlig kobling: 3.000 kg.
- Mulighet for sammenkobling med kontorvogn
Inventar:
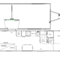
Stor bobil for 4 personer med 1 soverom med dobbeltseng, sengegrinder og topphyller. 1 soverom med sovesofa som måler B.130 L.192, hengestenger og topphyller. Kjøkken med 1 bord og 4 stoler, kaffetrakter, kjøl/frys, komfyr, stekeovn, mikrobølgeovn og oppvaskmaskin. Toalettrom med dusj og spyletoalett med avløpskvern, vaskemaskin, tørketrommel og gulvvarme i hele vognen.
Inkl. 25 m slangesett

















