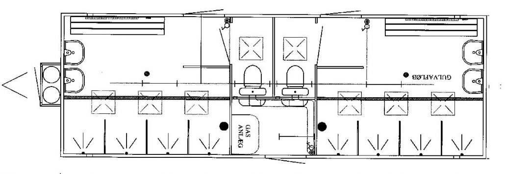
Beskrivelse
- Kapasitet: ca. 48 bad pr time
- Kapasitet: m/telt. 200 besøk pr time
- Mål: H. 300, B. 250, L. 730 cm.
- Elektrisk tilkobling: 230V 16A CEE plugg
- Vanntilkobling: 3/4” Nito kobling
- Avløp: Ø110
- Gassvannvarmer: 24 kW Forbruk maks. 2 kg gass pr time 2 x 11 kg. gassflasker med automatisk gassflaskebryter
- Usynlig kobling: 2.000 kg.
- Kuletrekk: 50 mm
Inventar:
2×4 bad med lys, elektrisk oppvarming, 4 vasker, 2 spyletoaletter, madame bagholder, speil, benk og jumbo toalettpapirholder.
Inkl. 25 m. elektrisk kabel 230V/16A og vannslange














