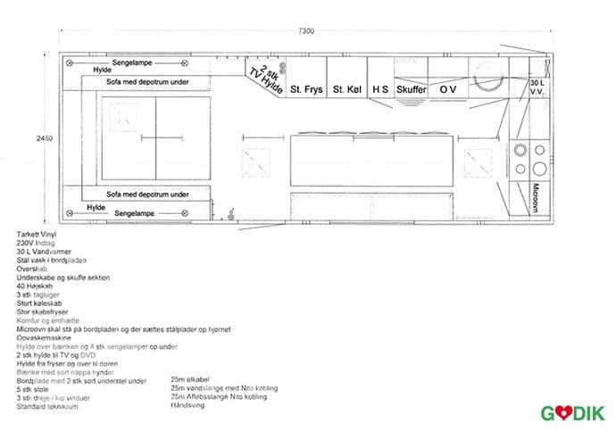
Beskrivelse
- Mål: H. 295, B. 250, L. 730 cm.
- Elektrisk tilkobling: 400V 16A CEE plugg
- Maks. strømforbruk: 13658W
- Vanntilkobling: 3/4” Nito kobling
- Avløp: 1” Nito kobling
- Avløpskvern: pumpelengde 50 m.
- Usynlig kobling: 2.000 kg.
- Kuletrekk: 50 mm
- Tilstand: Brukt
Inventar:
Komfyr med stekeovn, hette, oppvaskmaskin, mikrobølgeovn, kjøleskap, fryser, kosteskap, kjøkkenvask, 30 l varmtvannstank, avløp, spisebord med benk og 5 stoler, sittegruppe for 10 personer med salongbord, 2 hyller til TV og DVD.
Inkl. 25 m slangesett
Salgspris: 125.000 kr










