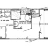
Beskrivelse
- Utvendig mål: H. 315, B. 250, L. 730 cm.
- Elektrisk tilkobling: 400V 16A CEE plugg
- Maks. strømforbruk: 17582W
- Vanntilkobling: 3/4” Nito kobling
- Avløp: 1” Nito kobling
- Avløpskvern: pumpelengde 50 m.
- Usynlig kobling: 2.300 kg.
Inventar:
4 soverom med springmadrass, kjøkken, komfyr, hette, mikrobølgeovn, kjøleskap, fryser, vaskemaskin, tørketrommel, bord og 4 stoler, kaffetrakter, knaggreie, toalettrom med badekar, wc, vask, vaskerom med avløpskvern.
Inkl. 25 m slangesett
Se installasjon av produktet














