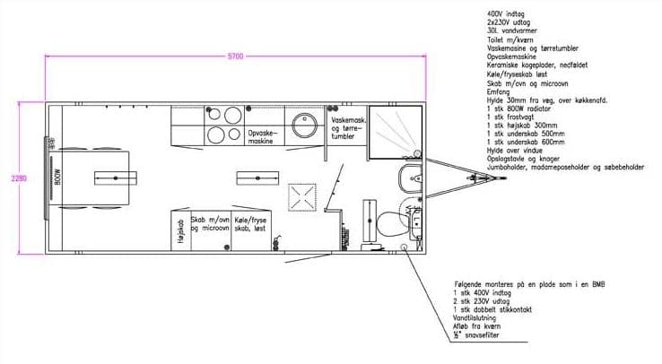
Beskrivelse
- Mål: H. 295, B. 230, L. 570 cm.
- Elektrisk tilkobling: 400V 16A CEE plugg
- Maks. strømforbruk: 11000W
- Vanntilkobling: 3/4” Nito kobling
- Avløp: 1” Nito kobling
- Avløpskvern: pumpelengde 50 m.
- Usynlig kobling: 1.800 kg.
- Kuletrekk: 50 mm
Inventar:
kjøkken: Kjøle/fryseskap, høyskap med stekeovn og mikrobølgeovn, keramisk platetopp, oppvaskmaskin, oppvaskkum, kjøkkenvask, underskap, bord med 4 stoler.
toalettrom: Dusj, varmtvannstank 30 l., toalett m/kvern, vaskemaskin og tørketrommel.
Inkl. 25 m slangesett











