Vare nr. 04370

6-personers kontor- og spisevogn m/ vakuumtoalett & tank

Utvalgte spesifikasjoner
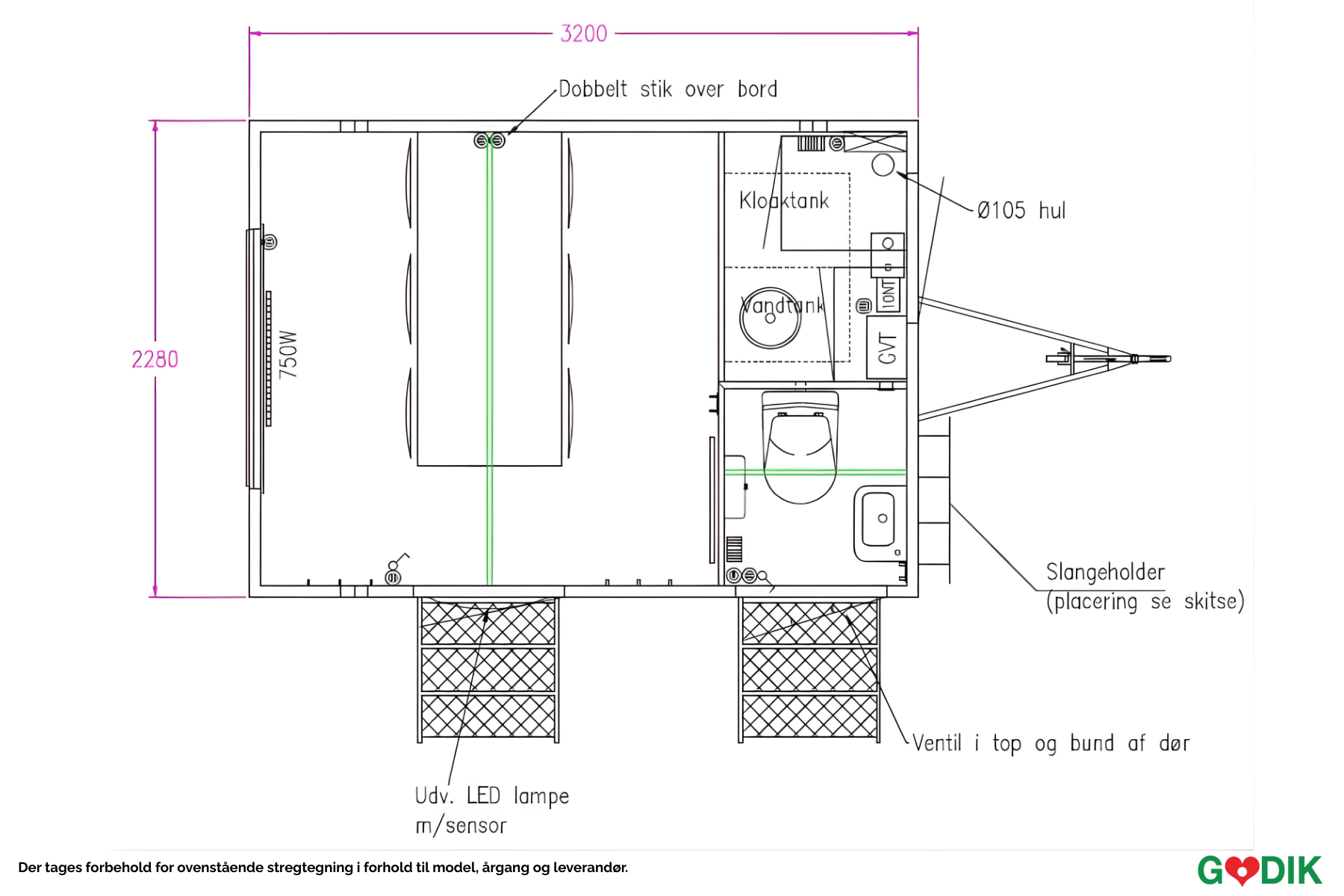
Bredde (cm)
228 cm
Højde (cm)
295 cm
Længde (cm)
320 cm
El-tilslutning
1 stk 230 V/ 16 A CEE-stik
Elektrisk tilkobling - Støpseltype
CEE-stik
Kapasitet (tekst)
Ca. 400-450 besøg
Spillvannstank (L)
220
Vanntilkobling
3/4” Nito kobling
Om produktet

Kontor- og spisevogn for 6 personer med vakuumtoalett og tank

(Vi svarar vanligtvis inom 24 timmar)
La oss hjelpe deg med ditt neste prosjekt – klar for å komme i gang?

Spesifikasjoner

Number
04370
Højde (cm)
295 cm
Længde (cm)
320 cm
Bredde (cm)
228 cm
Kapasitet (tekst)
Ca. 400-450 besøg
El-tilslutning
1 stk 230 V/ 16 A CEE-stik
Maks. strømforbruk (W)
2690
Vanntilkobling
3/4” Nito kobling
Avløpstilkobling
1” Nito kobling
Antall vanntanker
1
Vanntank (L)
170
Antall avløpstanker
1
Spillvannstank (L)
220
Usynlig kobling (kg)
1500
Kuleledd (mm)
50

Produktbeskrivelse

Kontorvogn med plass til seks personer – kombinert kontor og spiseplass. Leveres fullt utstyrt med strøm, oppvarming og belysning.

Hva er inkludert i leien?

25 meter vandslange, afløbsslange og elkabel, 2 stk. trapper, 1 stk. håndsving.

Inventar
1 køleskab, 1 bord, 6 stole, kaffemaskine, 1 opslagstavle, 1 overskab, el-radiator, LED lyd.