Vare nr. 04480

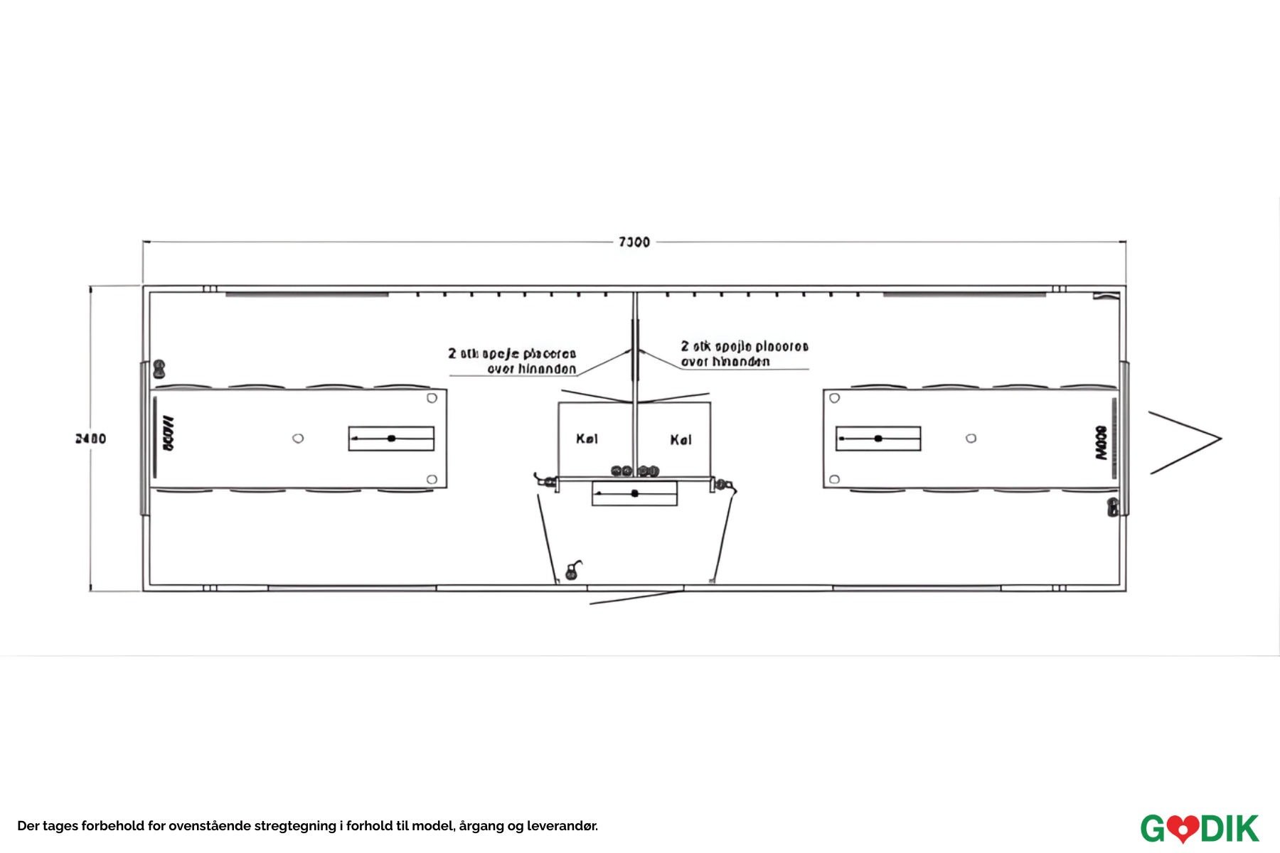
Kontorvogn med 2 rom for 2 x 8 personer

Utvalgte spesifikasjoner
Bredde (cm)
250 cm
Højde (cm)
295 cm
Længde (cm)
730 cm
Netto vægt
1200 kg
El-tilslutning
1 stk 400 V/ 16 A CEE-stik
Elektrisk tilkobling - Støpseltype
CEE-stik
Om produktet

Inneholder to kontorrom. Plass til 2*8 personer med bord, stoler og kjøleskap.

(Vi svarar vanligtvis inom 24 timmar)
La oss hjelpe deg med ditt neste prosjekt – klar for å komme i gang?

Spesifikasjoner

Number
04480
Højde (cm)
295 cm
Længde (cm)
730 cm
Bredde (cm)
250 cm
Netto vægt
1200 kg
El-tilslutning
1 stk 400 V/ 16 A CEE-stik
Maks. strømforbruk (W)
2180
Usynlig kobling (kg)
2000

Produktbeskrivelse

Kontorvogn med to separate rom og plass til 16 personer. Tilbyr fleksible arbeidsforhold på midlertidige lokasjoner.

Hva er inkludert i leien?

25 meter elkabel 400V/16A.

Inventar
2 rum, forgang, knagerække, 2 spejle, 2 borde, 16 stole, 2 køleskabe, 2 opslagstavler, 2 el-radiatorer, stikkontakter, 4 oplukkelige dreje/kip vinduer, rullegardin.