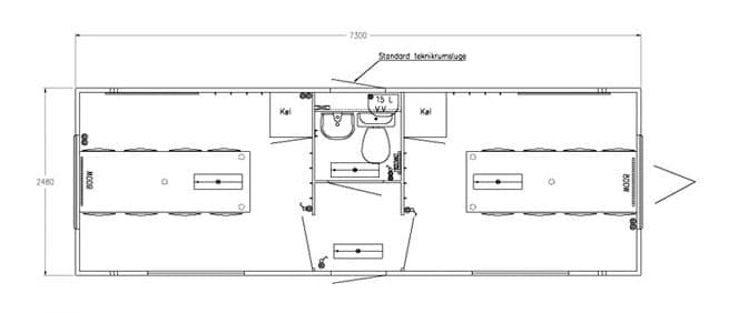
Beskrivelse
- Mål: H. 295, B. 250, L. 730 cm.
- Elektrisk tilkobling: 400V 16A CEE plugg
- Maks. strømforbruk: 6170W
- Vanntilkobling: 3/4” Nito kobling
- Avløp: 1” Nito kobling
- Avløpskvern: pumpelengde 50 m.
- Usynlig kobling: 2.000 kg.
- Tilstand: Brukt/Demo/Ny
Inventar:
2 kjøleskap, 2 bord, 16 stoler, toalett, vask, varmtvannsbeholder, 2 speil, 2 oppslagstavler, rullegardiner og elektriske radiatorer.
Inkl. 25 m slangesett
Salgspris: 111.900 kr










