Vare nr. 04015

Kontormodul med 2 rum (B:242 cm)

Utvalgte spesifikasjoner
Bredde (cm)
242 cm
Højde (cm)
275 cm
Længde (cm)
700 cm
Netto vægt
2500 kg
El-tilslutning
1 stk 400 V/ 16 A CEE-stik
Elektrisk tilkobling - Støpseltype
CEE-stik
Om produktet

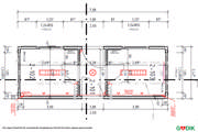
7 m lang kontormodul med 2 rom

Dette produktet har ikke hjul – transport krever truck.
(Vi svarar vanligtvis inom 24 timmar)
La oss hjelpe deg med ditt neste prosjekt – klar for å komme i gang?

Spesifikasjoner

Number
04015
Højde (cm)
275 cm
Længde (cm)
700 cm
Bredde (cm)
242 cm
Netto vægt
2500 kg
El-tilslutning
1 stk 400 V/ 16 A CEE-stik
Maks. strømforbruk (W)
5300

Produktbeskrivelse

Kontormodul med to separate rom for fleksibel bruk. Egnet som kontor eller møterom.

Hva er inkludert i leien?

Løfteramme for wirehejs.

Inventar
2 rum, el-radiator, lysarmaturer, el-udtag 230V, oplukkelige vinduer, spejl.