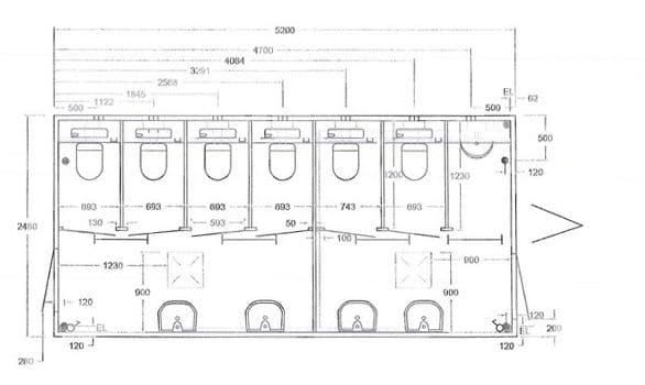
Beskrivelse
- Kapasitet: ca. 200 besøk i timen
- Utvendig mål: H. 295, B. 250, L. 520 cm.
- Elektrisk tilkobling: 400V 16A CEE plugg
- Vanntilkobling: 3/4” Nito kobling
- Avløp: Ø110
- Usynlig kobling: 1.500 kg.
- Kuletrekk: 50 mm
Inventar:
4 dametoaletter, 2 herretoaletter, 1 urinal, 4 servanter, 2 håndtørkere, speil, dameveskeholder og toalettpapirholder.
Inkl. 25 m. vannslange og elektrisk kabel 400V/16A
Avløp:
Vi anbefaler en kum montert mellom kjøretøyets avløp og kloakk/avløpstanken. Med mindre vogna er plassert i terreng med naturlig helning.













