Beskrivelse
- Kapasitet: ca. 400 besøk i timen
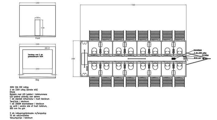
- Mål: H. 315, B. 250, L. 730 cm.
- Elektrisk tilkobling: 400V 32A CEE plugg
- Maks. strømforbruk: 7920W
- Vanntilkobling: 3/4” Nito kobling
- Avløp: 2″ C-kobling (2″ brannslange)
- Pumpelengde: 30 m
- Vakuumsystem 1 stk. m/skylling og sug
- Servanter: 2 stk. m/ tempostopp kraner
- Usynlig kobling: 3.500 kg.
- Egenvekt: 3.400 kg.
- Kuletrekk: 50 mm
Inventar:
Lys LED utvendig og innvendig, radiator, dispenserholdere for Alcogel 0,3 l., speil, krok, toalettpapirholder, dameveskeholder, Lysindikator for “ledig/opptatt” ved inngangsdører, fast trapp med rekkverk. Kan påføres med banner i enden med lenker øverst og nederst H. 153 B. 198 cm.
Inkl. 25 m. vann- og avløpsslange og elektrisk kabel















