Beskrivelse
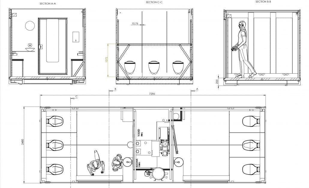
- Tankkapasitet: ca. 2000 besøk
- Kapasitet: ca. 150 besøk i timen
- Mål: H. 315, B. 250, L. 730 cm.
- Elektrisk tilkobling: 400V 32A CEE plugg
- Maks. strømforbruk: 8460W
- Tank: 2×600 l. vann / 2×1000 l. avløpsvann
- Vanntilkobling: 3/4” Nito kobling
- Avløp: 2″ C-kobling (2″ brannslange)
- Pumpelengde: 30 m
- Vakuumsystem 1 stk. m/skylling og sug
- Servanter: 2 stk. m/ tempostopp kran
- Usynlig kobling: 3.500 kg.
- Egenvekt: 3.500 kg.
Inventar:
3 dametoaletter, 3 herretoaletter, utvendige og innvendige LED-lys, radiator, speil, krok, toalettpapirholder, dameveskeholder, skyvedører, håndtørker og høyttalere for musikk.
inkl. 25 m. vann- og avløpsslange og elektrisk kabel
Det belastes et beløp for fylling og rengjøring samt tømming ved bruk av tank












